Genellikle çok delikli matkap, çoklu karışık delme makinesi, çoklu lekeli takım tezgahı veya çoklu karışık kafa olarak bilinen çoklu-buruşuk matkap, yeni bir delik işleme ekipmanıdır. Aslında, sondaj ve dokunma makinelerine monte edilmiş Chuck Head'dir ve aynı anda iki veya daha fazla eksen üzerinde delinmiş veya dokunulmuş parçaları işleyebilir, bu nedenle çok eksenli bir makine olarak adlandırılır. Çok delikli matkap, tek bir düzlemde aynı anda birden fazla delik işleyebilir ve tezgah matkapları ve güç kafaları gibi çeşitli sondaj makinelerine monte edilebilir. Verimliliği artıran ve maliyetleri azaltan verimli bir takım tezgah aksesuarıdır ve işlenen ürünlerin kalitesi sabittir.
Diğer boyutlar özelleştirilebilir.
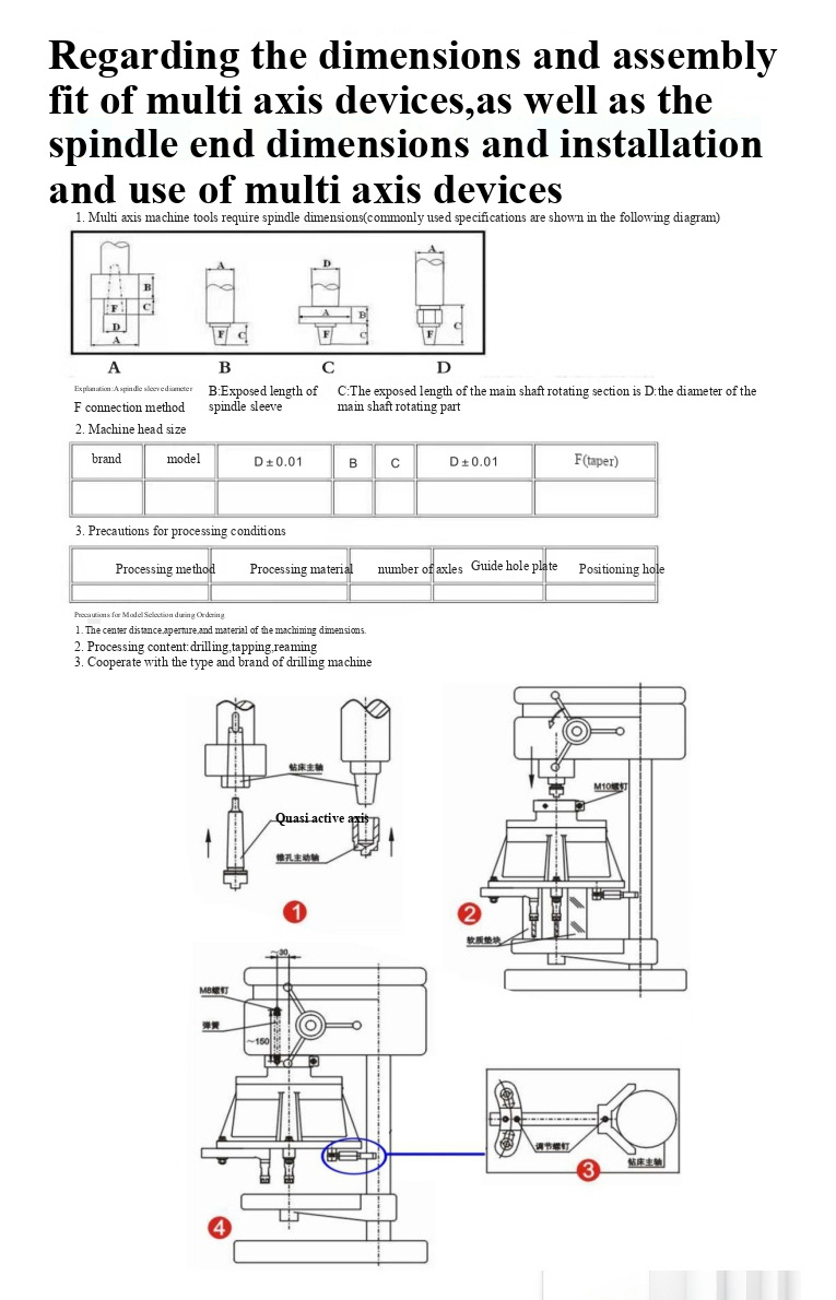
Yaygın bir çok eksenli sondaj makinesi ve ortak bir sondaj makinesi (tezgah matkapları, dikey matkaplar, radyal matkaplar, sondaj ve öğütme makineleri, doğrudan motor bağlantıları, güç kafaları, vb.
Başlık
(İki eksenli ayarlanabilir çok eksenli sondaj, dokunma ve işleme makinesi, tam otomatik delme makinesi aksesuarları, iki eksenli sondaj makinesi, çok tepeli sondaj)







